Services
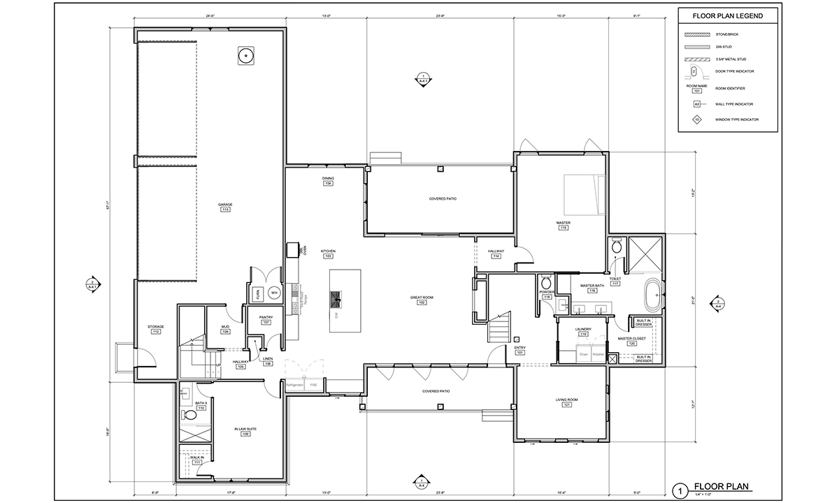
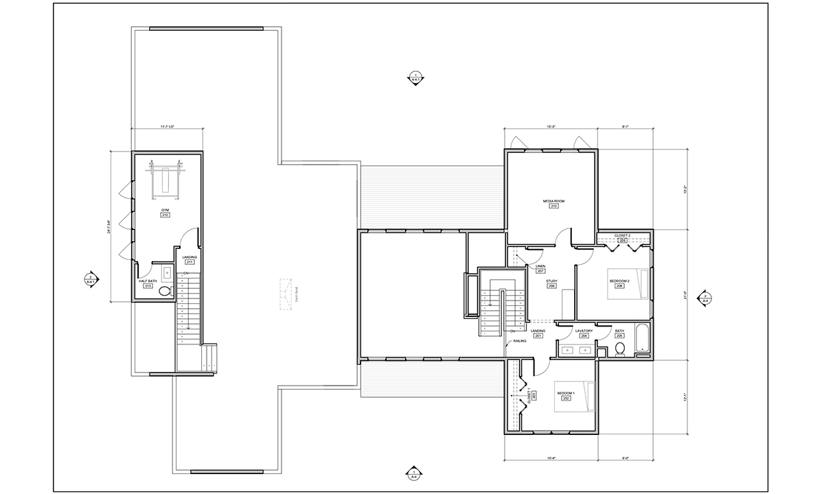
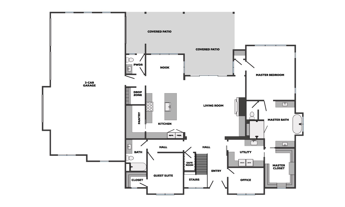
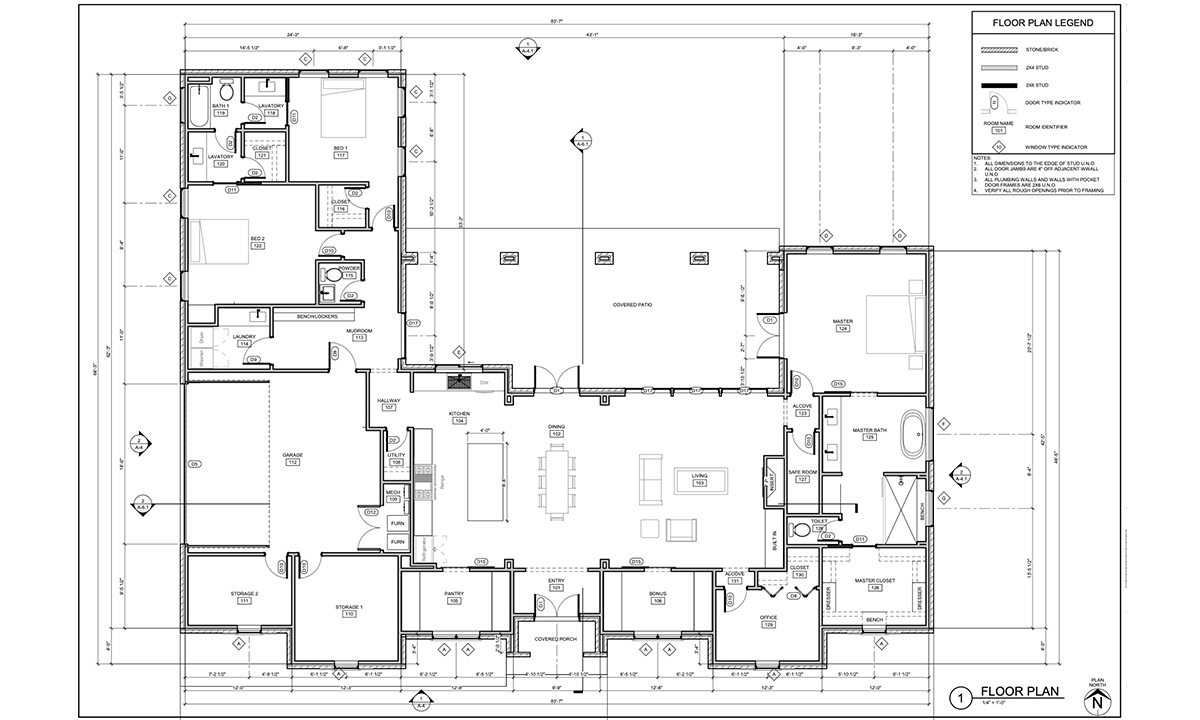
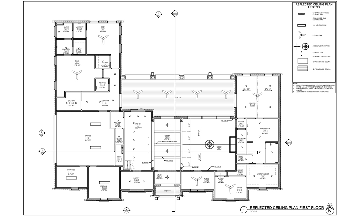
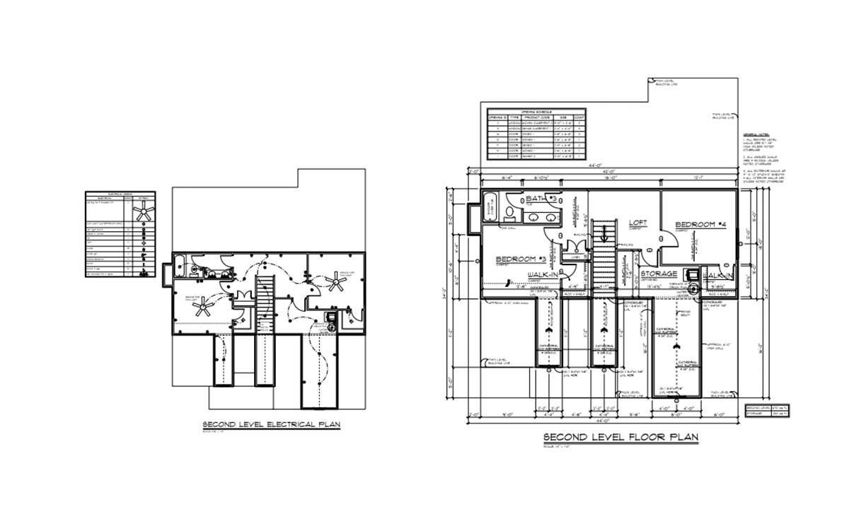
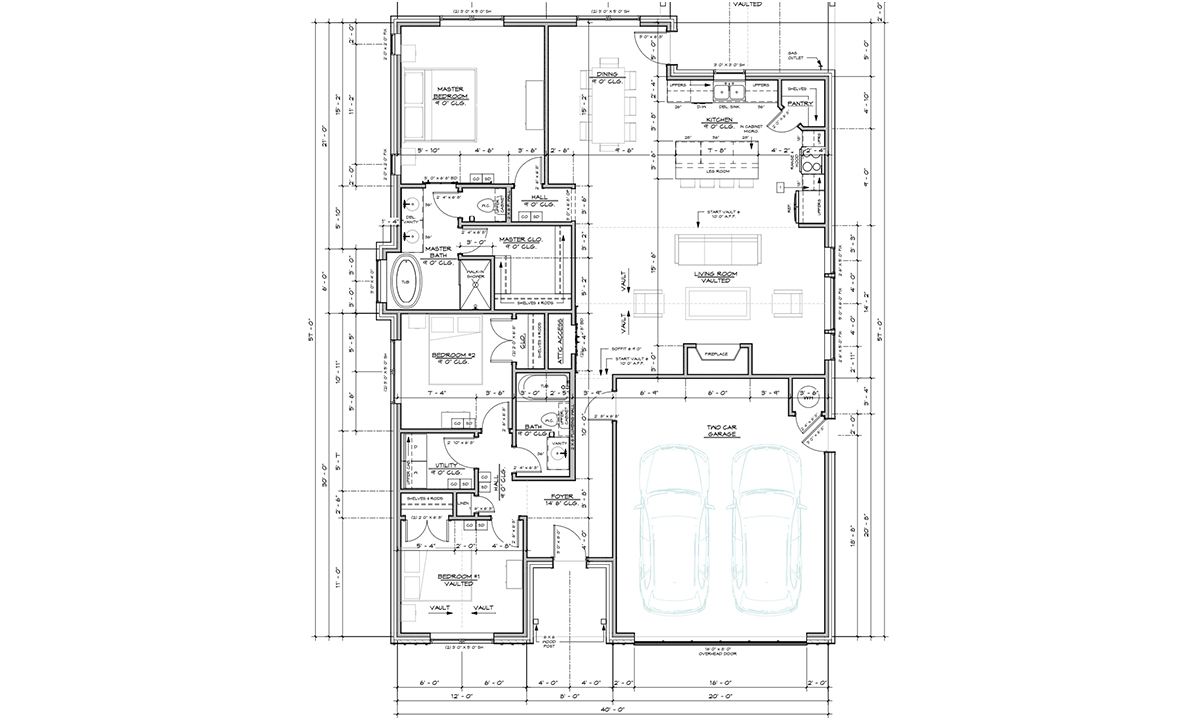
Our Floorplans
Thoughtful layouts designed to match the way you live, creating a foundation for lasting memories. While we focus primarily on custom new construction and commercial builds, the floor plans below are meant to inspire both our custom and spec homes.

The floor plans below are meant to inspire both our custom and spec homes, however most of our homes are custom built to your specifications.










































